博康技術資料
聯系我們
- 聯系人:郭經理
- 傳真:010-69552656
- 電話:400-0346-119
- 電話:010-57113119
- 郵箱:506665119@qq.com
- 地址:北京通州區新華北路117號
博康JTGB-HW-BK51Ex/IR3點型紅外火焰探測器
時間:2018-11-02 09:05:50 品牌:
![[!--oldtitle--]](/d/file/baojingshebei/2018-11-02/e7173e4238edc4c3019bb0f84e165173.jpg)
一、JTGB-HW-BK51Ex/IR3點型紅外火焰探測器概述
JTGB-HW-BK51Ex/IR3點型紅外火焰探測器含三個紅外探測波長的傳感器和光學過濾器,探測器對CO2發射光譜(4.4µm)具有-高的靈敏性,另二個紅外傳感器對環境光線、熱體輻射的干擾進行探測,探測器對探測結果擁有多項信號處理算法,結合對火災發生時火焰閃爍頻率的邏輯綜合判斷,能夠-大程度抑制錯誤報警以及需要的-佳的火災探測性能。
JTGB-HW-BK51Ex/IR3紅外火焰探測器特殊的火災信號處理方法與三波長紅外傳感器技術極大的提高了探測器的靈敏度和響應時間,具有抗日光及其它熱光源干擾的性能,可直接用于油罐區等露天環境,JTGB-HW-BK51Ex/IR3火焰探測器對碳氫化合物等有機材料的火災具有探測距離遠、響應時間快速的報警性能。
二、JTGB-HW-BK51Ex/IR3點型紅外火焰探測器技術指標
| 型號 | JTGB-HW-BK51Ex/IR3 |
| 工作電壓 | 18V-32VDC無極性 |
| 探測器角度 | 90° |
| 靜態電流 | ≤15mA/24VDC |
| 報警狀態 | ≤30mA/24VDC |
| 火災響應時間 | ≤5S |
| 確認燈 | 正常時閃亮,報警時常亮 |
| 光譜響應波長 | 4.4µm 3.8µm 2.7µm |
| 工作環境濕度 | 5-95%RH無凝露 |
| 工作環境溫度 | -40℃~+70℃ |
| 出口螺紋 | 3-G3/4 |
| 防爆標志 | ExdIICT6Gb |
| 防護等級 | IP66 |
| 外殼材質 | 鑄鋁;不銹鋼 |
| 重量 | 1.7kg(鑄鋁)3.2kg(不銹鋼) |
| 探測距離 | 35米(33cm×33cm×5cm正庚烷火) |
| 認證標準 | GB15631-2008、GB3836.1-2010、GB3836.2-2010 |
| 輸出方式 | RS485MODBUS協議,報警繼電器觸點輸出、故障繼電器觸點輸出 |
| 觸點容量 | 2A/30VDC,4-20mA(故障:0-1mA,正常:4mA±5%,報警:12mA±5%) |
三、JTGB-HW-BK51Ex/IR3紅外火焰探測器特性
●三波長紅外+頻率多重判斷。
●敏感度可現場設置。
●電磁輻射免疫,日光盲。
●具有紅外遙控測試功能。
●三種輸出方式:RS485、繼電器,4-20mA。
●--、工業化外形設計。
●三端口進線。
●自帶遮光罩。
●防塵、防爆、防腐蝕、防雨淋設計,無需防雨罩可直接在室外使用。
●根據客戶需求,外殼可采用316不銹鋼材質。
●專業設計的安裝支架,可適應多種不同的安裝環境。
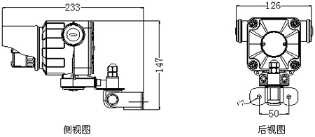
四、JTGB-HW-BK51Ex/IR3點型紅外火焰探測器外形圖

JTGB-HW-BK51Ex/IR3點型紅外火焰探測器外形圖
五、JTGB-HW-BK51Ex/IR3點型紅外火焰探測器接線端子圖
端子說明:
POWER+、-:外接24VDC無極性
20mA:4~20mA輸出
FAULT:故障繼電器,無源觸點;正常時常閉,掉電或故障時斷開
FIRE:火警繼電器輸出,無源觸點;正常時常開,報警時閉合
A、B:RS-485輸出

JTGB-HW-BK51Ex/IR3點型紅外火焰探測器接線端子圖







